
OFERTA
ZEROHOUSE
142 Solare
142 Solare
Zakup projektu

PARTER
- Wiatrołap6,49 m2
- Pomieszczenie gospodarcze3,42 m2
- Garaż23,10 m2
- Pokój dzienny z kuchnią39,2 m2
- Klatka schodowa2,8 m2
- Pomieszczenie magazynowe1,12 m2
- Komunikacja4,69 m2
- Pokój gościnny8,08 m2
- RAZEM91,46 m2
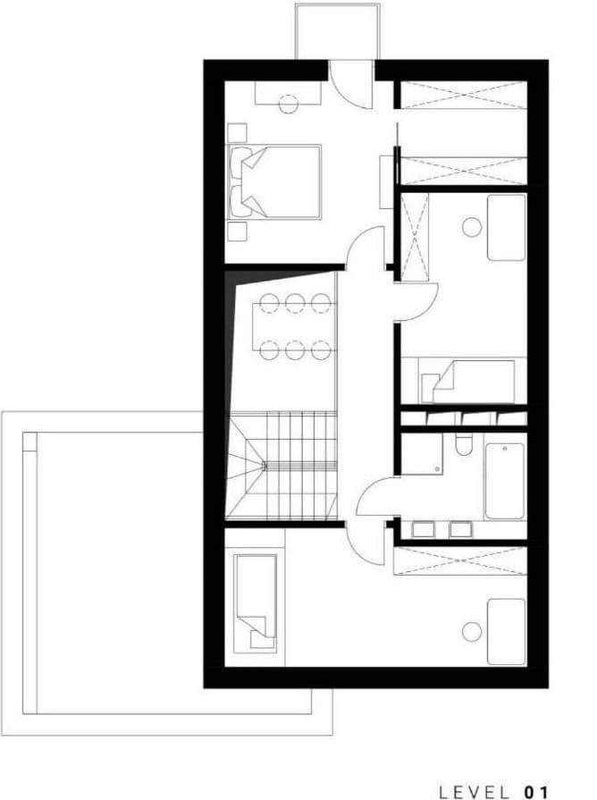
PIĘTRO
- Klatka schodowa2,80 m2
- Komunikacja6,40 m2
- Sypialnia10,72 m2
- Garderoba4,12 m2
- Sypialnia8,35 m2
- Łazienka4,21 m2
- Sypialnia13,30 m2
- RAZEM49,90 m2

Piętro
Tutaj każdy członek rodziny ma swój prywatny kąt. Na piętrze znajdują się 3 niezależne sypialnie - w tym jedna z prywatną garderobą i balkonem. Dzięki funkcjonalnemu układowi, każde z pomieszczeń można dowolnie zaaranżować według własnych potrzeb: od dziecięcego pokoju zabaw po prywatny gabinet do pracy. Ty zdecyduj, jakich wnętrz potrzebujesz.
Na brak przestrzeni nie można narzekać: piętro to prawie 50 m2 do wykorzystania dla Ciebie i Twojej rodziny. Urządźcie się po swojemu.
Parter
Jasna, niemal 40-metrowa przestrzeń dzienna to połączenie kuchni, jadalni i salonu. Do środka wpada dużo dziennego światła, dzięki licznym przeszkleniom na wysokość całej ściany. Stąd wystarczy już tylko krok, by znaleźć się na tarasach, będących przedłużeniem strefy relaksu. Latem z przyjemnością można zjeść tam śniadanie czy rozkoszować się wieczornymi zachodami słońca.
Na partnerze zaaranżowaliśmy również niewielką sypialnię dla gości, inne pomieszczenia to toaleta, korytarz, schowek gospodarczy i magazynowy, a także wiatrołap chroniący przed napływającym z zewnątrz chłodem. Pozostałą przestrzeń zajmuje 1-stanowiskowy garaż.
Piętro
Tutaj każdy członek rodziny ma swój prywatny kąt. Na piętrze znajdują się 3 niezależne sypialnie - w tym jedna z prywatną garderobą i balkonem. Dzięki funkcjonalnemu układowi, każde z pomieszczeń można dowolnie zaaranżować według własnych potrzeb: od dziecięcego pokoju zabaw po prywatny gabinet do pracy. Ty zdecyduj, jakich wnętrz potrzebujesz.
Na brak przestrzeni nie można narzekać: piętro to prawie 50 m2 do wykorzystania dla Ciebie i Twojej rodziny. Urządźcie się po swojemu.
Parter
Jasna, niemal 40-metrowa przestrzeń dzienna to połączenie kuchni, jadalni i salonu. Do środka wpada dużo dziennego światła, dzięki licznym przeszkleniom na wysokość całej ściany. Stąd wystarczy już tylko krok, by znaleźć się na tarasach, będących przedłużeniem strefy relaksu. Latem z przyjemnością można zjeść tam śniadanie czy rozkoszować się wieczornymi zachodami słońca.
Na partnerze zaaranżowaliśmy również niewielką sypialnię dla gości, inne pomieszczenia to toaleta, korytarz, schowek gospodarczy i magazynowy, a także wiatrołap chroniący przed napływającym z zewnątrz chłodem. Pozostałą przestrzeń zajmuje 1-stanowiskowy garaż.


Wirtualny spacer
Przespaceruj się po naszym domu i zobacz wszystkie pomieszczenia.
NASZE PAKIETY




NASZE PAKIETY




Zdalny dostęp z każdego miejsca
Kurier czeka z paczką, a Ciebie nie ma w domu? Z FIBARO za sprawą jednego kliknięcia otworzysz bramę wjazdową oraz uchylisz bramę garażową, a Ty na ekranie swojego telefonu będziesz miał w tym czasie podgląd. Twoje dostawy już nigdy nie będą awizowane. Życie w domu ZeroHouse staje się dużo łatwiejsze.

Jeszcze więcej inteligencji w zarządzaniu energią.
System daje ogromne możliwości w oszczędzaniu energii elektrycznej w Twoim domu. Od teraz urządzenia mogą być uruchamiane w taniej taryfie energetycznej lub kiedy Twoja mini-elektrownia produkuje prąd. Dzięki FIBARO jednym kliknięciem wyłączysz telewizor, światła we wszystkich pomieszczeniach oraz zmniejszysz ogrzewanie.

Komfortowe oświetlenie
Steruj inteligentnym oświetleniem z poziomu aplikacji w Twoim smartphone. To Ty decydujesz jaki poziom natężenia światła jest dla Ciebie idealny. Oczekujesz pełnej integracji? Inteligentne sceny pozwolą w sposób automatyczny zmieniać nastrój i oświetlenie w ZeroHouse. Chcesz oglądać wieczorny film? Rozpocząć domowe party i zaskoczyć gości? Od teraz Twój dom to prawdziwe centrum multimedialne.

Zdalny dostęp z każdego miejsca
Kurier czeka z paczką, a Ciebie nie ma w domu? Z FIBARO za sprawą jednego kliknięcia otworzysz bramę wjazdową oraz uchylisz bramę garażową, a Ty na ekranie swojego telefonu będziesz miał w tym czasie podgląd. Twoje dostawy już nigdy nie będą awizowane. Życie w domu ZeroHouse staje się dużo łatwiejsze.

Jeszcze więcej inteligencji w zarządzaniu energią.
System daje ogromne możliwości w oszczędzaniu energii elektrycznej w Twoim domu. Od teraz urządzenia mogą być uruchamiane w taniej taryfie energetycznej lub kiedy Twoja mini-elektrownia produkuje prąd. Dzięki FIBARO jednym kliknięciem wyłączysz telewizor, światła we wszystkich pomieszczeniach oraz zmniejszysz ogrzewanie.

Galeria
Zobacz naszą galerię zdjęć
i poczuj się jak w domu













